Official Transportation Hub

Hotel Shuttle Services

EVENT SERVICE TONIGHT

Annual Meeting Party

Shuttle service to the Museum of Science and Industry will be provided from all official AAN 2026 hotel shuttle stops between 6:15 PM - 8:00 PM.

Return service operates from 8:30 PM - 10:30 PM to all official stops. Please see the map below for route boarding locations at the museum.

An additional Route E will be available to & from the event for attendees at McCormick West and nearby hotels during the times listed above.

Pickup will be available at McCormick West Gate 41 and return service will drop-off at the Hyatt Regency McCormick and the Marriott Marquis.

Hotel Shuttles

Search for your hotel or scroll through the list to find information regarding:

  • Shuttle stops

  • Live wait time estimates

  • Boarding location panoramas

  • Map directions

  • Bus signage

🔍

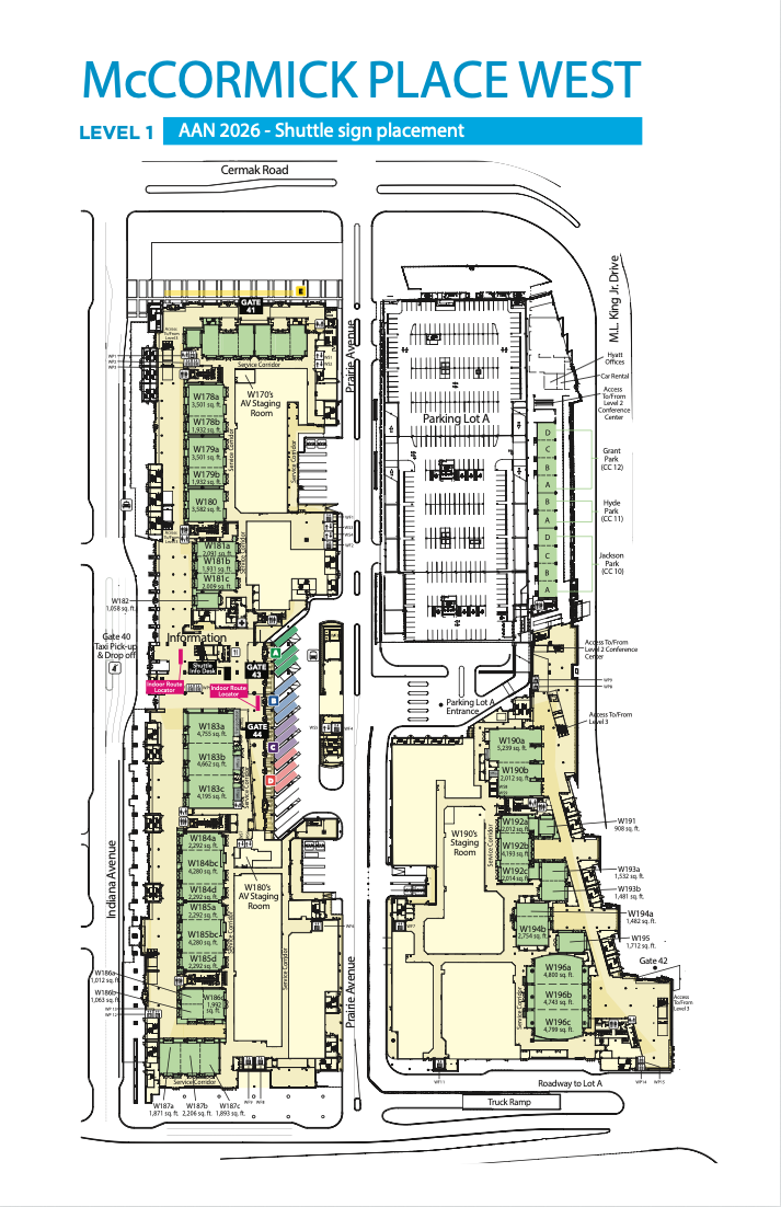
Convention Center

Shuttles to serviced hotels are available for pickup at the McCormick Place West Building on Level One at Gate 43/44.

To determine which shuttle you should ride, please search for your hotel in the section above.

Interactive Map

Click on Side Panel icon below to view full hotel list.

Click on Full Screen icon below to open in Google Maps application.

Shuttle Flyer

Use the button below to open the classic shuttle flyer and save it for easy reference when you need it!

Rideshare & Taxi

Rideshare & taxi pickup area located on Indiana Avenue at Gate 40.

Flights

Tap the link below to visit ORD website for airport information and maps.

Tap the link below to visit MDW website for airport information and maps.

Tap the link below to visit FlightAware for information on specific flights.

Official transportation managed by: